|
|
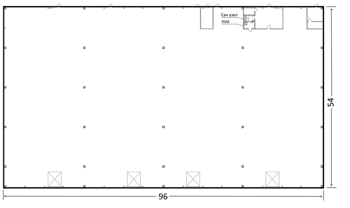
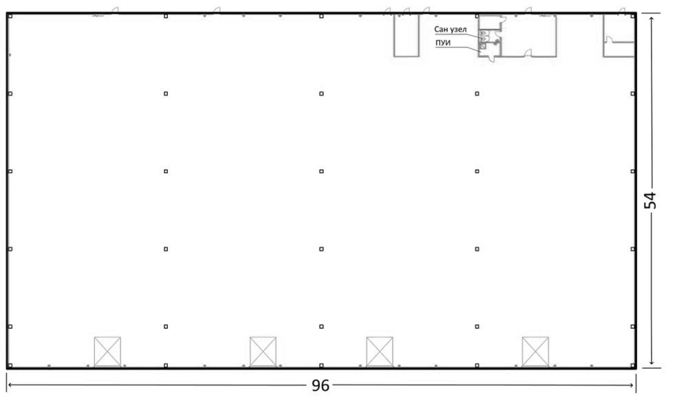
КОРПУС 5 |
|---|---|
| Расположение | Логопарк Быково |
| Площадь | 5 260 кв. м |
| Назначение | производственно складской комплекс |
| Рабочая высота | 8,0 м |
| Пол | бетонный обеспыленный, нагрузка 6 т/кв. м |
| Перегрузочные системы |
4 шт (+0,00м) |
| Готовность |
готов к заезду |
Корпус 5 Быково

