|
|
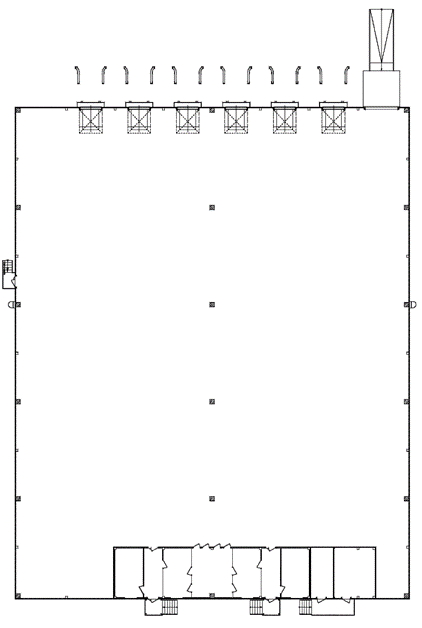
КОРПУС 12 |
|---|---|
| Расположение | Логопарк Софьино |
| Площадь | 2 650 кв. м |
| Назначение |
производственно-складской комплекс |
| Рабочая высота | 10,5 м |
| Пол | бетонный обеспыленный, нагрузка 9 т/кв. м, отметка пола +1,20 м |
| Перегрузочные системы |
6 шт - 2,8х2,6 м, ворота оснащены доклевеллерами, докшелтерами и тепловыми завесами, на отметке +1,20 м, один технологический въезд |
| Готовность |
декабрь 2025г |
Корпус 12 Софьино

